1500 Sherman Avenue, Evanston, IL 60201

(224) 252-8407

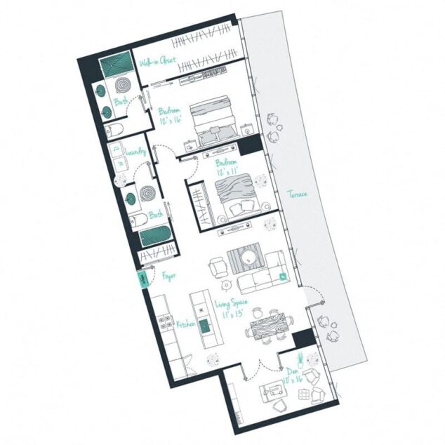
Floor Plans